メールでのお問い合わせ
ホーム
物件一覧
お客様のご紹介
契約までの流れ
会社概要
お問い合わせ
閲覧履歴
お気に入り
ホーム >
物件一覧
>
物件詳細
物件番号
3050
JR「横川駅」徒歩圏内!1階に空き出ます!(2026年1月末解約)
賃料
339,680
円
敷金/礼金
2,038,080円/
管理費等
物件名
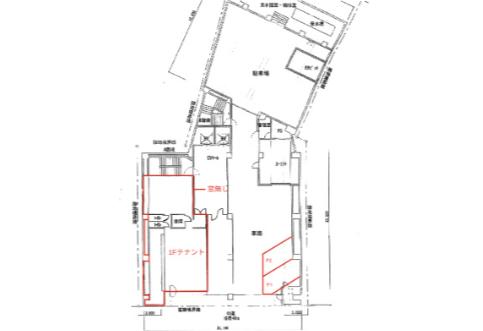
和光広瀬ビル 1階
所在地
広島市中区広瀬北町3-11
所在階/階数
9階建ての1階
物件詳細
物件番号
3050
お気に入り
×
物件番号
3050
物件カテゴリ
店舗
最寄り駅
広島電鉄 横川線 別院前駅 2分
広さ
38.60坪/127.38㎡
駐車場
無し
構造
鉄筋鉄骨コンクリート
現況
即日
築年月
1976年3月
設備
所在階1F/エレベーター
備考
要消費税(賃料・礼金・仲介手数料)その他/保証会社・損害保険必加入。※個別警備(24時間対応) 個別空調。
【印刷用】物件詳細
トップに戻る
物件一覧へ戻る
違う条件で選ぶ
カテゴリ
事務所
店舗
倉庫・工場
居抜物件
その他
エリア
中区
東区
西区
南区
佐伯区
安佐南区
その他
広さ
下限なし
10坪
20坪
30坪
40坪
50坪
60坪
70坪
80坪
~
上限なし
10坪
20坪
30坪
40坪
50坪
60坪
70坪
80坪
賃料
下限なし
50,000円
100,000円
150,000円
200,000円
250,000円
300,000円
400,000円
500,000円
600,000円
700,000円
800,000円
900,000円
1,000,000円
~
上限なし
50,000円
100,000円
150,000円
200,000円
250,000円
300,000円
400,000円
500,000円
600,000円
700,000円
800,000円
900,000円
1,000,000円
この条件で検索
弊社にご来店をご希望のお客様へ
物件案内などで事務所に不在の場合が多く、お客様お一人おひとりとの時間を大切にしたいため、ご来店される方は
前日までにご連絡
お願い致します。
メールフォーム