メールでのお問い合わせ
ホーム
物件一覧
お客様のご紹介
契約までの流れ
会社概要
お問い合わせ
閲覧履歴
お気に入り
ホーム >
物件一覧
>
物件詳細
物件番号
2531
事務所テナント1F!駐車場3台可(車種による)
賃料
200,000
円
敷金/礼金
200,000円/200,000円
管理費等
物件名
メゾン陽光 101号室
所在地
広島市中区南竹屋町6-15
所在階/階数
4階建ての1階
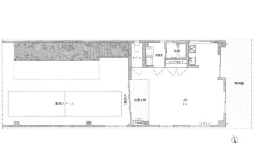
物件詳細
物件番号
2531
お気に入り
×
物件番号
2531
物件カテゴリ
事務所/店舗
最寄り駅
広島電鉄 宇品線 広電本社前駅 7分
広さ
15.19坪/50.2㎡
駐車場
3台込み
構造
鉄骨造
現況
即日
築年月
1986年12月
設備
所在階1F
備考
要消費税(賃料・礼金・仲介手数料)その他/保証会社、損害保険必加入。専用庭付(16㎡)!!事務所に希少なユニットバス付!!トイレ、お風呂、クローゼット、全て綺麗に隠れます!!/システムキッチン(3口ガ
【印刷用】物件詳細
トップに戻る
物件一覧へ戻る
違う条件で選ぶ
カテゴリ
事務所
店舗
倉庫・工場
居抜物件
その他
エリア
中区
東区
西区
南区
佐伯区
安佐南区
その他
広さ
下限なし
10坪
20坪
30坪
40坪
50坪
60坪
70坪
80坪
~
上限なし
10坪
20坪
30坪
40坪
50坪
60坪
70坪
80坪
賃料
下限なし
50,000円
100,000円
150,000円
200,000円
250,000円
300,000円
400,000円
500,000円
600,000円
700,000円
800,000円
900,000円
1,000,000円
~
上限なし
50,000円
100,000円
150,000円
200,000円
250,000円
300,000円
400,000円
500,000円
600,000円
700,000円
800,000円
900,000円
1,000,000円
この条件で検索
弊社にご来店をご希望のお客様へ
物件案内などで事務所に不在の場合が多く、お客様お一人おひとりとの時間を大切にしたいため、ご来店される方は
前日までにご連絡
お願い致します。
メールフォーム